Greentech Innovationszentrum Mannheim.
The city of Mannheim, Germany, issued a competition for the development of a new sustainable green tech startup office building in the Glückstein Quartier. The site, adjacent to the MAFINEX startup office complex, posed design challenges due to its narrow shape, requiring the architecture to respond to its surroundings and constraints. The design integrates the building into the existing urban fabric, which is characterized by sharp triangular geometries at intersections and building footprints.
A key aspect of the design is the integration of green spaces, drawing inspiration from the nearby Glückstein Park, which plays a crucial role in the project, especially given its focus on green startups and workshop spaces. This creates a dynamic relationship between the urban context and green elements, reflected in the facade and functional layouts.
Public spaces and circulation are designed to enhance the building's vibrancy, connecting it to the surrounding Glückstein area and emphasizing public functions on the lower levels, culminating in vertical circulation throughout the building. Sustainability is prioritized through the use of recycled concrete, modular wooden construction, and flexible floor plans, which allow for adaptability and future-proofing of the building's functions. This "greening" of the structure underscores the project's commitment to sustainable architectural practices.
Competition - HPP Architekten und Ingenieure GmbH , 2021
Group members: Rayan Alfadel, Simon Bauer, Fadi Alnaber
Site Plan
Morphology of Integration
Architectural Morphology
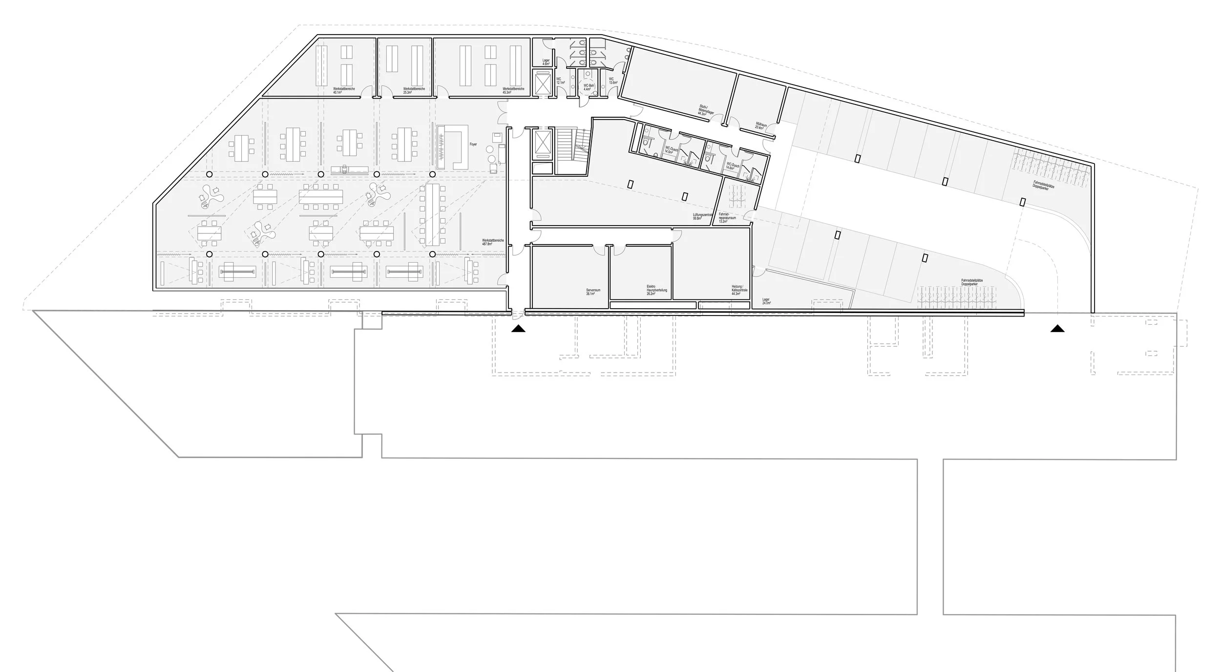
Ground Floor Plan
Elevations
Structural Concept
Ungerground Plan
Structural Sketch